首页
作品
联系
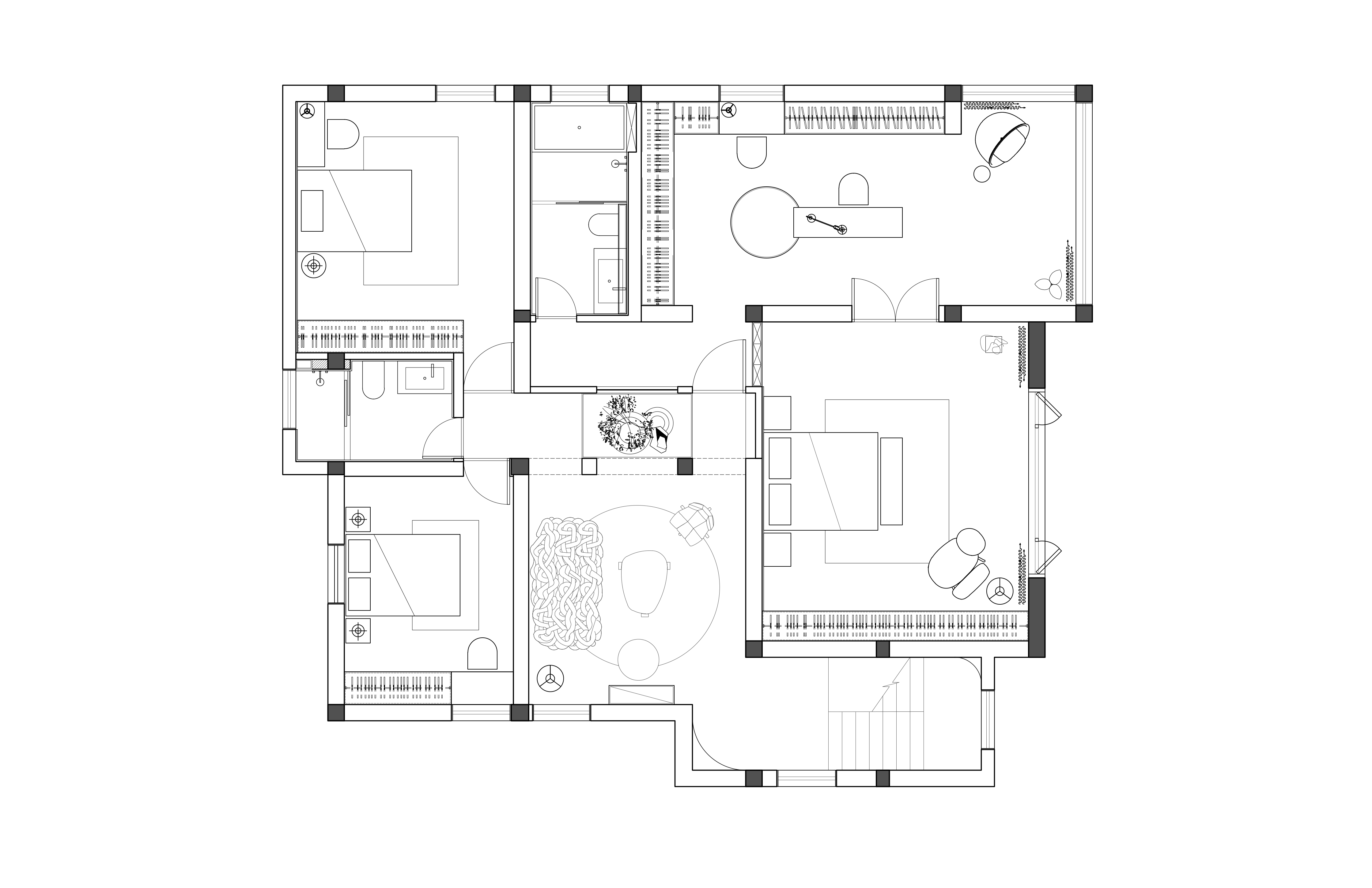
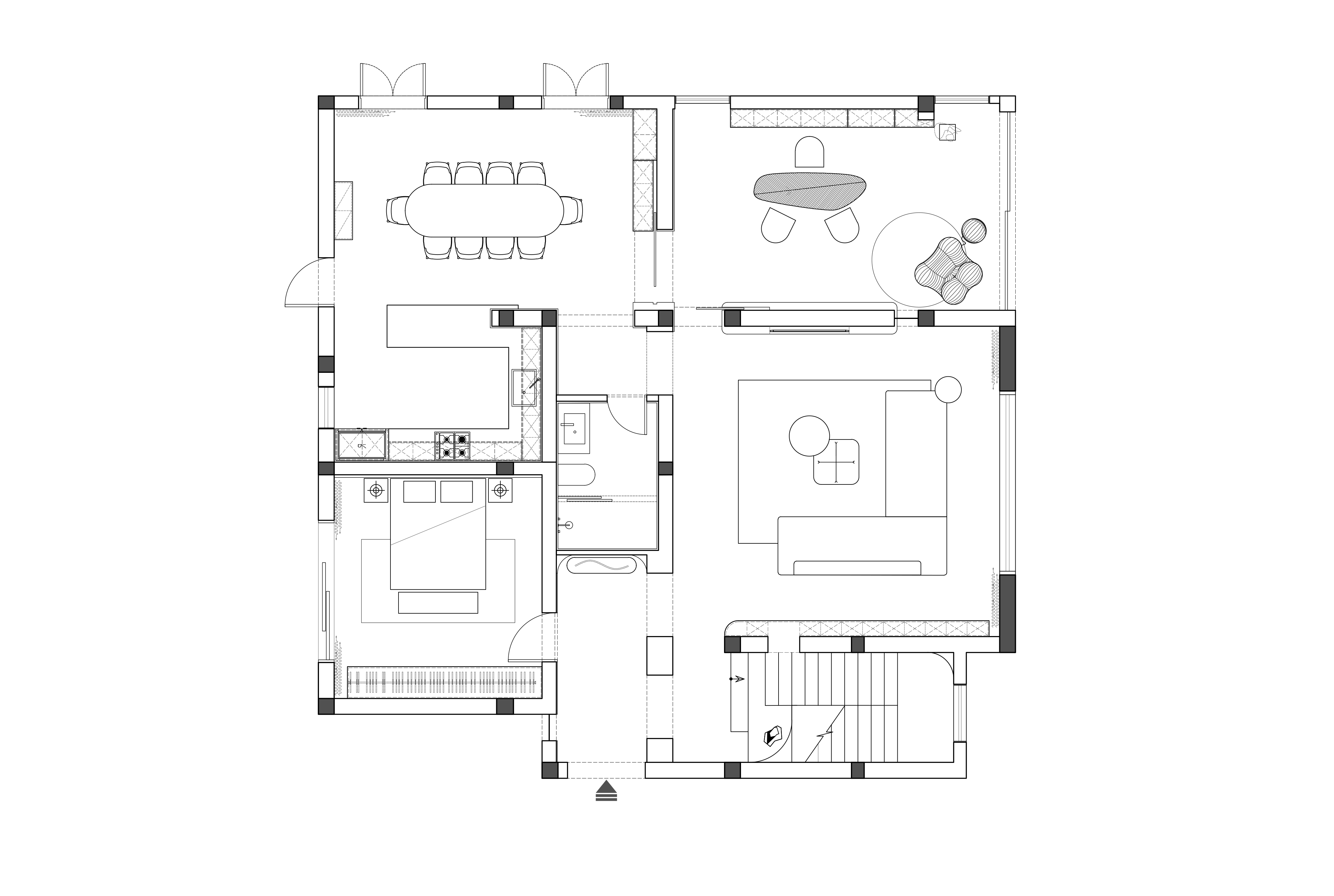
鲸山别墅 300㎡
Prev
Next